Belmont
130 m² -
4 camere • lot 500mp • gradina 350mp • 2 locuri de parcare gratuite din care unul carport • 1 terasa si 1 porch
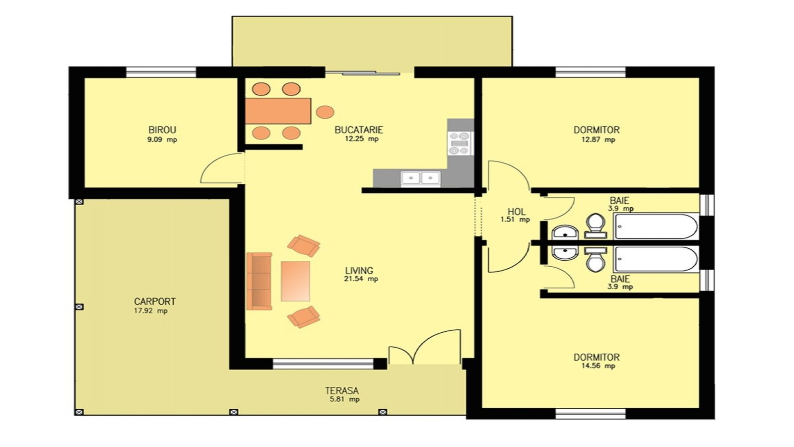
Vila are un singur nivel, 130mp construiti, 85mp utili, 2 dormitoare, 1 birou, carport pentru masina si terase in fata si spate.
Casa are toate facilitatile si este perfecta pentru vacante si weekend sau poate fi o casa permanenta pentru o familie cu 2-3 membri. Proiectul are un living mare, deschis spre o bucatarie spatioasa, cu iesire la terasa de 13mp si gradina de 350mp.
Cele 2 dormitoare au dressinguri proprii si o baie privata. Zona de storage si de servicii completeaza ergonomia casei. Casa are 2 terase largi, perfecte pentru a savura cafeaua dimineata la rasarit de soare sau sa stai seara la povesti in lungile seri de vara.
Casa se vinde la cheie cu toate dotarile necesare:
Exterior:
• Izolatie cu polistiren expandat EPS80 de 10cm
• Finisaj cu tencuiala decorativa (optional caramida rosie decorativa)
• Ancadramente geamuri din elemente decorative
• Invelitoare acoperis din tigla metalica cu sistem pluvial complet pana la nivelul solului, marca Ruukki (optional drenaj in sistemul centralizat de colectare ape fluviale)
• Pazie si sageac din lemn rasinos vopsit
• Tamplarie PVC cu geam termopan low-e
• Usi intrare, acces exterior din tamplarie PVC cu inchidere in 5 puncte
• Trotuar, trepte si terasa din beton armat
• 2 Locuri de parcare gratuite
• Optional terasa extinsa spate cu gresie sau lemn
• Optional obloane manuale sau automate.
• Gard cu plasa metalica de protectie.
Interior:
• Sapa cu granule de polistiren armata cu fibra metalica
• Izolatie cu vata minerala (optional vata bazaltica); folie anticondens
• Pereti interiori placate rigips, zugraviti, vopsiti in alb mat
• Gresie, faianta (include adezivi, chituri, accesorii)
• Parchet 8mm laminat (include accesoriile), KronoSwiss
• Instalatii electrice(tablou electric distributie interioara monofazica, prize si intrerupatoare pentru toate volumele)
• Calorifere otel, boiler, centrala termica , distributie agent termic pe sistem PPR
• Corpuri si obiecte sanitare
• Prize si intrerupatoare Biticino
• Usi interioare
• Optional semineu, tamplarie din lemn
Pretul este de €110.000 + TVA



